แบบบ้านชั้นครึ่ง 3 ห้องนอน 3 ห้องน้ำ

แบบบ้านชั้นครึ่ง 3 ห้องนอน 3 ห้องน้ำ

แบบบ้านชั้นครึ่ง 3 ห้องนอน 3 ห้องน้ำ

แบบบ้านชั้นครึ่ง 3 ห้องนอน 3 ห้องน้ำ

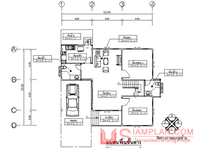
ชื่อแบบบ้าน : บ้านอุดมสุข (รหัส DP018)
ลักษณะตัวบ้าน : แบบบ้านชั้นครึ่ง
องค์ประกอบของบ้าน : ห้องพระ 3 ห้องนอน 3 ห้องน้ำ ห้องรับแขก ห้องทำงาน ครัว ระเบียง
พื้นที่ใช้ซอย : 135 ตารางเมตร
ราคาประมาณการก่อสร้าง : 1,920,000 - 2,640,000 บาท (หากมีการเปลี่ยนแปลงทางทีมงานขอสงวนสิทธิ์ที่จะไม่แจ้งให้ทราบล่วงหน้า)

องค์ประกอบของตัวบ้าน :
- ห้องโถง-รับแขก (ขนาด 0.00 x 0.00 เมตร)
- ห้องนอน (ขนาด 0.00 x 0.00 เมตร)
- ห้องน้ำ (ขนาด 0.00 x 0.00 เมตร)
- ห้องครัว (ขนาด 0.00 x 0.00 เมตร)

 

เขียนแบบบ้านราคาประหยัด

ติดต่อ : คุณธนเสฏฐ์ โทร. 090-9063693

Line ID : siamplan

รับเขียนแบบบ้าน

siamplan_ผญ๋า_30.png