













ชื่อแบบบ้าน : แบบบ้านกล่องที่มี (รหัส DP026)
ลักษณะตัวบ้าน : แบบบ้านสองชั้น, แบบบ้านตึกสองชั้น
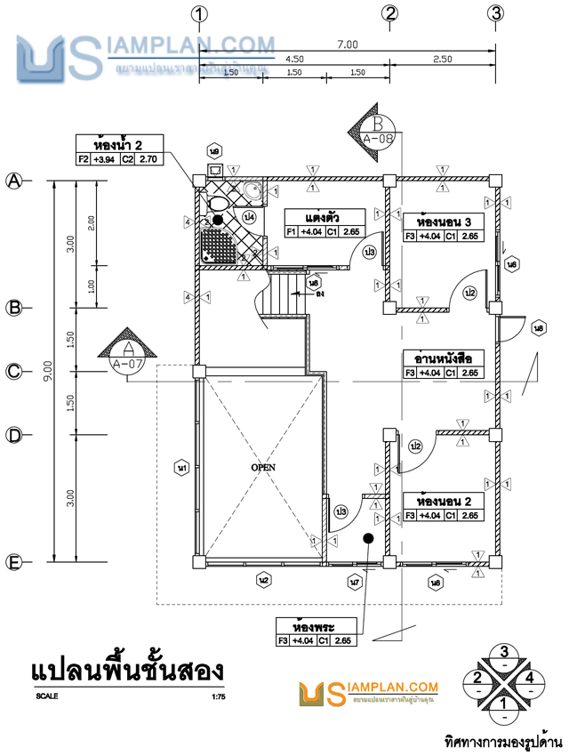
องค์ประกอบของบ้าน : 3 ห้องนอน 2 ห้องน้ำ ห้องพระ ห้องแต่งตัว ห้องอ่านหนังสือ ห้องรับแขก ระเบียง ครัว
พื้นที่ใช้ซอย : 126 ตารางเมตร
ขนาดที่ดินที่เหมาะสมกับแบบบ้าน : กว้าง x ยาว ไม่ควรน้อยกว่า 11.00 x 13.00 เมตร
ราคาประมาณการก่อสร้าง : 1,360,000 - 1,890,000 บาท (หากมีการเปลี่ยนแปลงทางทีมงานขอสงวนสิทธิ์ที่จะไม่แจ้งให้ทราบล่วงหน้า)
องค์ประกอบของตัวบ้าน :
- ห้องนอน 1 (ขนาด 2.50 x 3.00 เมตร)
- ห้องนอน 2 (ขนาด 2.50 x 3.00 เมตร)
- ห้องนอน 3 (ขนาด 2.50 x 3.00 เมตร)
- ห้องน้ำ 1 (ขนาด 1.50 x 2.00 เมตร)
- ห้องน้ำ 2 (ขนาด 1.50 x 2.00 เมตร)
- ห้องรับแขก (ขนาด 2.50 x 3.00 เมตร)
- โถง (ขนาด 4.50 x 4.50 เมตร)
- ครัว (ขนาด 2.50 x 3.00 เมตร)
- ห้องพระ (ขนาด 1.50 x 1.50 เมตร)
- ห้องแต่งตัว (ขนาด 2.00 x 3.00 เมตร)
- ห้องอ่านหนังสือ (ขนาด 2.50 x 3.00 เมตร)
วัสดุและอุปกรณ์ตกแต่งหลักของตัวบ้าน :
- หลังคามุงกระเบื้องหลังคามุงหลังคาเมทัลชีท
- พื้นห้องนอน1, ห้องรับประทานอาหาร, ห้องรับแขก, ห้องโถง, ห้องแต่งตัว ปูพื้นด้วยกระเบื้องแกนิโต้ ขนาด 60 x 60 cm.
- พื้นห้องน้ำ 1, พื้นห้องน้ำ 2 และพื้นลานซักล้าง ปูพื้นด้วยกระเบื้องเคลือบ ขนาด 8" x 8" ผิวด้าน สีเรียบ
- พื้นห้องนอน2, พื้นห้องนอน3, ห้องแต่งตัว, ห้องอ่านหนังสือ ปูพื้นด้วยลามิเนต
- ผนังห้องโดยรวม เป็นผนังก่ออิฐมอญ ผิวฉาบปูนเรียบ เซาะร่องสำหรับเสาโชว์ ภายในทาสีน้ำอะคริลิคภายใน ภายนอกทาสีน้ำอะครีลิคภายนอก
- ผนังห้องน้ำและห้องครัว เป็นผนังก่ออิฐมอญ ผิวกุกระเบื้องเคลือบขนาด 20 X 30 cm. ผิวมัน ปูสูง 1.80 เมตร ขอบบนกุกรุยเชิง
- ฝ้าเพดานห้องโดยรวม ใช้ยิบซั่มบอร์ด หนา 9 มม. ฉาบรอยต่อเรียบ ทาสีน้ำอะครีลิค โครงเคร่าเหล็กซุบสังกะสี
- ฝ้าเพดานห้องน้ำ และห้องครัว ใช้ยิบซั่มบอร์ด หนา 9 มม. ชนิดทนความชื้น ฉาบรอยต่อเรียบ ทาสีน้ำอะครีลิค โครงเคร่าเหล็กซุบสังกะสี
- ฝ้าเพดานภายนอก ใช้ฝ้าตราช้าง สมาร์ทบอร์ด ความหนา 4 mm. ฉาบรอยต่อเรียบ ทาสีน้ำอะครีลิค โครงเคร่าเหล็กซุบสังกะสีซีลายน์ เบอร์24
ลักษณะโครงสร้างของตัวอาคาร :
- ฐานราก ทำได้ทั้ง ฐานแผ่ เสาเข็มกลุ่ม เสาเข็มตอก และเสาเข็มเจาะ ขึ้นอยู่กับคุณภาพของชั้นดิน
- ฐานราก ตอม่อ เสา คาน และคาน เป็นคอนกรีตเสริมเหล็ก
- พื้นห้องโดยรวม เป็นพื้นคอนกรีตสำเร็จรูป
- พื้นห้องน้ำทั้งหมด พื้นห้องครัว และพื้นระเบียงบ้านทั้งหมด เป็นพื้นคอนกรีตเสริมเหล็กเทในที่ (SLAB ON BEAM)
- พื้นลานซักล้าง เป็นพื้นคอนกรีตเสริมเหล็กวางบนดิน (SLAB ON GROUND)
- โครงหลังคา ใช้เหล็กรูปพรรณ





