
ชื่อแบบบ้าน : แปลนพื้น แปลนบ้าน รหัส PP063
ลักษณะตัวบ้าน : แบบบ้านชั้นเดียว, แบบบ้านเดี่ยวตึกชั้นเดียว
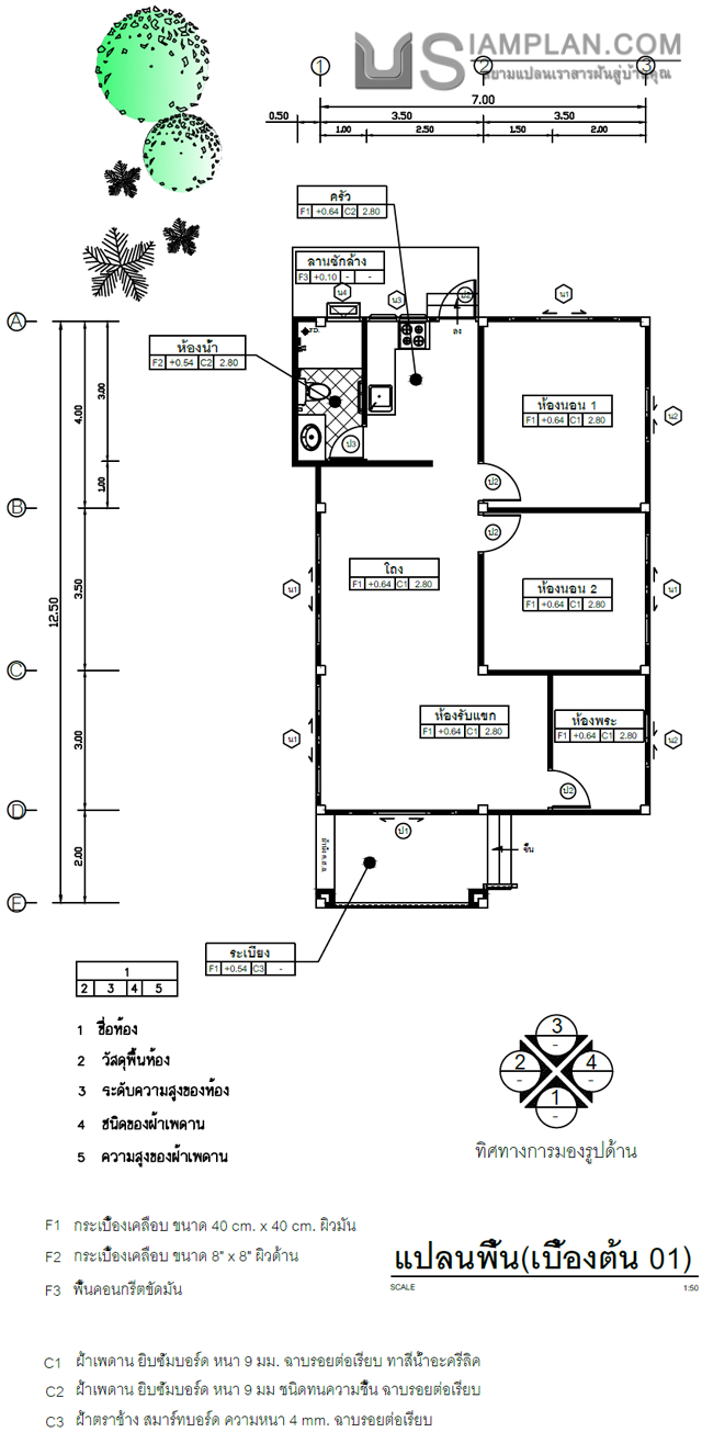
องค์ประกอบของบ้าน : 2 ห้องนอน 1 ห้องน้ำ ห้องรับแขก โถง ระเบียง ครัว ลานซักล้าง
พื้นที่ใช้ซอย : 82 ตารางเมตร
ขนาดที่ดินที่เหมาะสมกับแบบบ้าน : กว้าง x ยาว ไม่ควรน้อยกว่า 11.00 x 16.50 เมตร
ราคาประมาณการก่อสร้าง : 1,380,000 - 1,794,000 บาท (หากมีการเปลี่ยนแปลงทางทีมงานขอสงวนสิทธิ์ที่จะไม่แจ้งให้ทราบล่วงหน้า)
องค์ประกอบของตัวบ้าน :
- ห้องนอน 1 (ขนาด 3.50 x 4.00 เมตร)
- ห้องนอน 2 (ขนาด 3.50 x 3.50 เมตร)
- ห้องน้ำ (ขนาด 1.50 x 3.00 เมตร)
- ห้องรับแขก + โถง (ขนาด 3.50 x 7.50 เมตร)
- ระเบียง (ขนาด 2.00 x 3.50 เมตร)
- ครัว (ขนาด 2.50 x 3.00 เมตร)





